554 MARKET StreetSt. Augustine, FL 32095
Due to the health concerns created by Coronavirus we are offering personal 1-1 online video walkthough tours where possible.




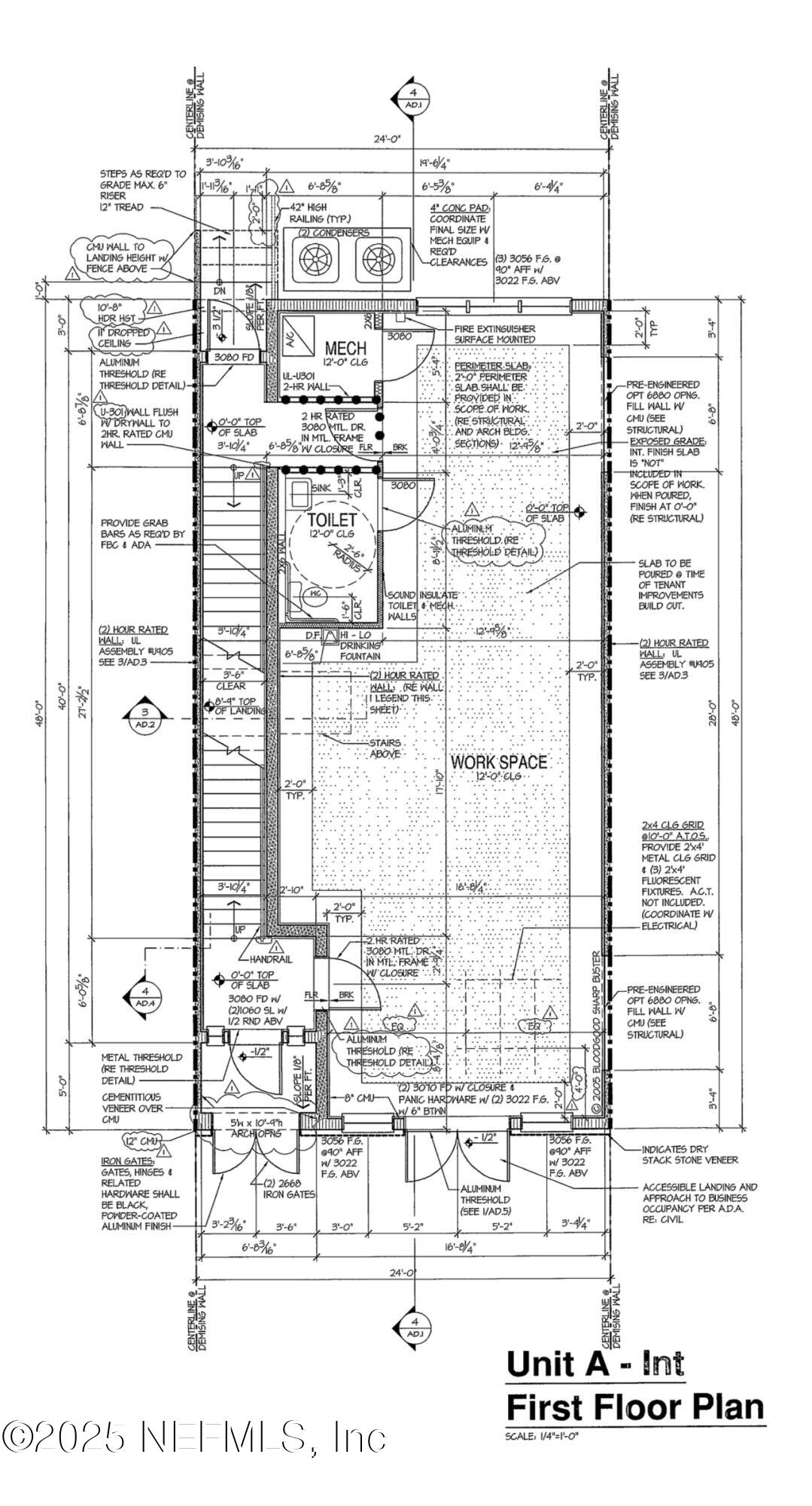
Palencia in St. Johns County in St. Augustine is an upscale community that attracts great tenants. Currently a 7 Cap. If managed well, at current pace then one should be able to project 3-4% yearly increase in revenue and long-term leases are positioned as such. Short-term rental option for one of three units. Three addresses: 550 MARKET ST - 1070sqft Office 554 MARKET ST - 2350sqft Townhome 359 MIDWAY ST - 550sqft Apartment
| 3 months ago | Price changed to $859,000 | |
| 3 months ago | Listing updated with changes from the MLS® | |
| 5 months ago | Listing first seen on site |
Listing information is provided by Participants of the Northeast Florida Multiple Listing Service(dba realMLS). IDX information is provided exclusively for personal, non-commercial use, and may not be used for any purpose other than to identify prospective properties consumers may be interested in purchasing. Information is deemed reliable but not guaranteed. Copyright 2026, Northeast Florida Multiple Listing Service(dba realMLS).
Last checked: 2026-02-13 04:38 AM UTC


Did you know? You can invite friends and family to your search. They can join your search, rate and discuss listings with you.